
Newburgh Community Photo Project
Newburgh, New York, 2016-17
with Vince Cianni
[facebook.com/newburghcommunityphotoproject]
NCPP is a volunteer-run arts organization that utilizes photography as a community gathering point, providing exhibition space, cameras, materials, and equipment, as well as workshops and mentorship by local and national photographers. Situated in a city which is highly racialized, divested and now gentrifing (around the arts), NCPP makes specific aims to provide resources that are often unaccessible to local residents and youth.
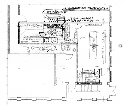
The design challenge was to create a public functioning workshop and exhibition space within a privately owned studio. The private darkroom and studio of Vince Cianni, as well as the appointment-based archive of George Platt Lynes and Anatole Pohorilenko, were wrapped around a deliberately 'un-designed' open work space that serves as the publicly visible gathering space of the photo project. By giving window and street priority to the public space and the private spaces left un-intruding yet accessiblle, the users of the open space can effectively be ‘given the keys’ to a flexible area so that each iteration of workshop and exhibition can take ownership, yet retain dialogue and support from the private resources.
Alongside the development of the space included research and mapping of the racial histories of Newburgh. In addition and alongside a slow building of friendships and conversations of politics in many different settings which seeped their way into the formation of programming and a deliberate simplicity of spatial design. Conversations which were never planned, never meant to be productive, but simply intended to be had.










