. . . . . . . . . . . . . . . . . . . . . . . . . . . . . . . . . . . .

The Althouse Arboretum contains 17 acres of land managed for environmental education and outdoor enjoyment. Numerous childrens and community programs are organized over various trails, outdoor classrooms, gardens, pavilions and meadows.
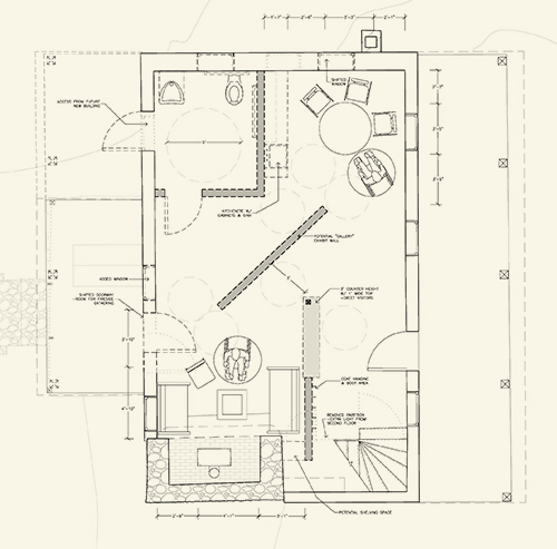
The visitor center acts as a lounge and office for the arboretum, occupying a former farmhouse. My great-grandparents lived in the house during their retirement and was donated by my family to become the arboretum. We designed a renovation to shift the orientation towards a broader community and to sustain moments of gathering, sharing and learning.
1794 Gilbertsville Rd,
Pottstown, Pennsylvania, U.S.
facebook.com/althousearboretum









